REQUEST A TOUR If you would like to see this home without being there in person, select the "Virtual Tour" option and your agent will contact you to discuss available opportunities.
In-PersonVirtual Tour

$ 350,000
Est. payment | /mo
$ 350,000
Est. payment | /mo
Key Details
Property Type Vacant Land
Sub Type Lots/Land
Listing Status Active
Purchase Type For Sale
MLS Listing ID SR25114290
Property Sub-Type Lots/Land
Property Description
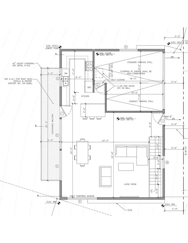
READY TO ISSUE (RTI) PLANS AVAILABLE! Welcome to 5105 Escobedo Drive, a rare chance to build something special in the hills of Woodland Hills. The plans call for a gorgeous, modern 3 bedroom, 2 bathroom, 1800+ sq ft home with a two-car garage complete with a balcony providing magnificent views. This vacant lot sits on a quiet street just south of Ventura Boulevard, surrounded by beautiful homes and scenic canyon views. Its the kind of spot that feels tucked away, yet still close to all of Woodland Hills' hottest amenities: The Village, shopping at the Westfield Topanga Mall, beautiful hiking trails, and great schools are all just minutes away. The best part? The property comes with ready-to-issue (RTI) plans, so you can skip the long, arduous permitting process and start building right away. Whether you're a developer or someone looking to create your dream home from the ground up, this is a golden opportunity in one of the Valley's most sought-after neighborhoods.
Location
State CA
County Los Angeles
Direction South of Ventura Blvd
Interior
Fireplace No
Exterior
Utilities Available Electric
View Y/N No
Present Use Unimproved
Others
Tax ID 2167019012
Acceptable Financing Cash
Listing Terms Cash
Virtual Tour https://www.youtube.com/watch?v=u_9eMpmQtLE&feature=youtu.be

Listed by Setrag Avakian Rodeo Realty

"My job is to find and attract mastery-based agents to the office, protect the culture, and make sure everyone is happy! "






